Description
Technical data
Products Description



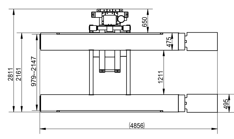
Specifications | SP-6000 |
Capacity | 2.7 Tons |
Width Overall | 2841mm |
Height Overall | 2900mm |
Length Overall | 4756mm |
Undercar clearance | 1960mm |
Drive Over Base Ramp Height | 125mm |
Runway Width | 475mm |
Runway Length | 3780mm |
Clearance Between Runways | 1231mm |
Approach Ramp Length | 930mm |
Power Supply | 110V~415V |
Tags:
