Products Description
● 5000KGS/11000LBS capacity;
● Single point manual lock release;
● Heavy duty, stainless lifting cables;
● Slave runway adjustable to cater for various wheel base vehicles;
● Height limit switch;
● Optional anti-surge valve in case of hydraulic hose burst;
● Cable anti-break device to double ensure the safety;
● ETL and CE certified motor;
● Single hydraulic cylinder hidden away under the runway
for Min exposure and max reliable performance.

Tags:
Technical parameter
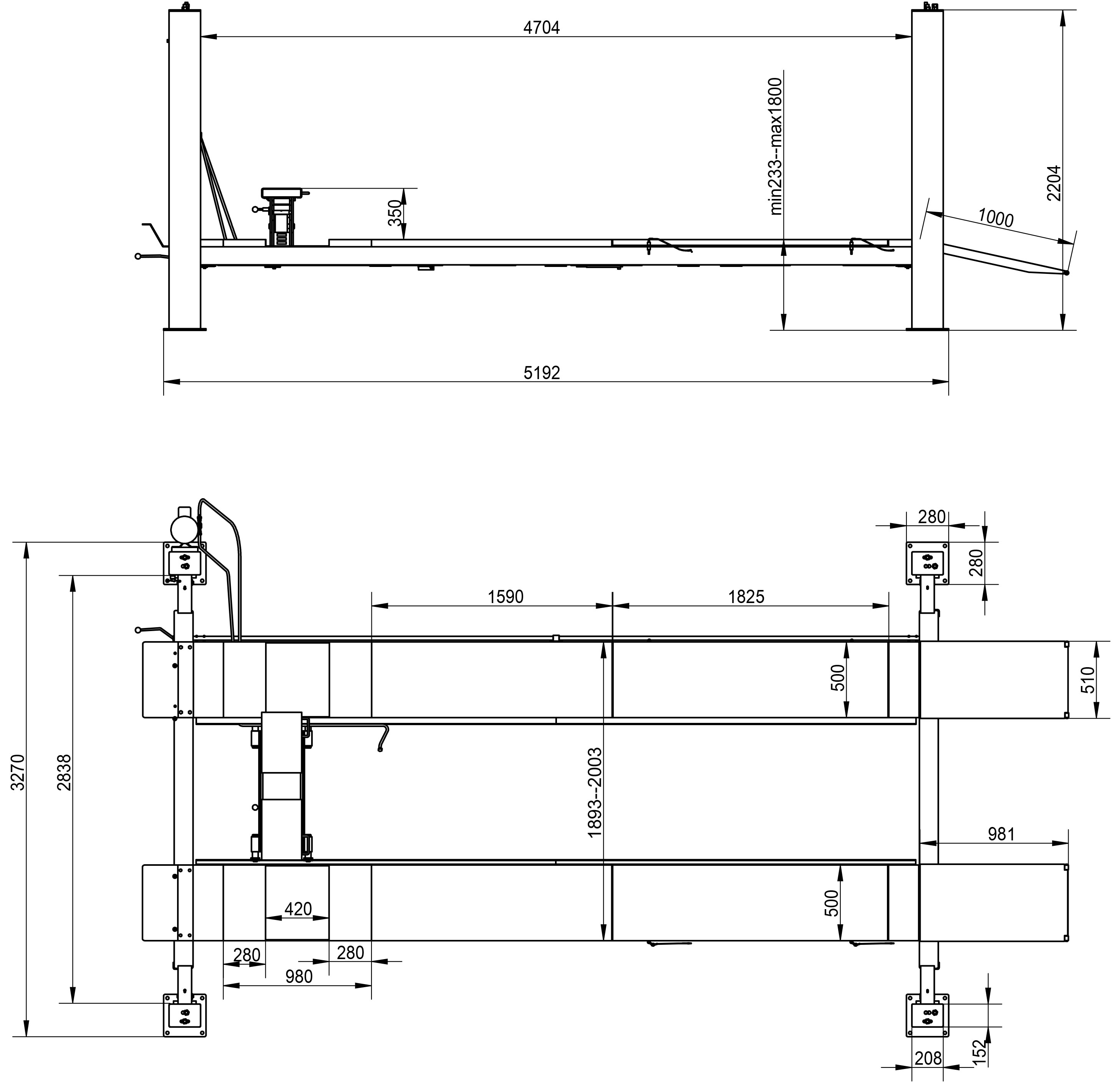
Model:SG4-50T
Lifting Capacity: 5000KGS
Lifting Height: 1850mm
Secondary Lifting Height:350mm
Secondary Lifting Weight:3.0T
Power of Motor:3.0KW
Oil Pressure:18Mpa
Power Supply:10-240V/380-415V 1/3PH, 50Hz/60Hz
Rise Time:50s
Lowering Time:40s
