Products Description
● Lifting capacity 4000KGS;
● Multi-position safety locks on each column;
● Alu ramps feature non-skid surface;
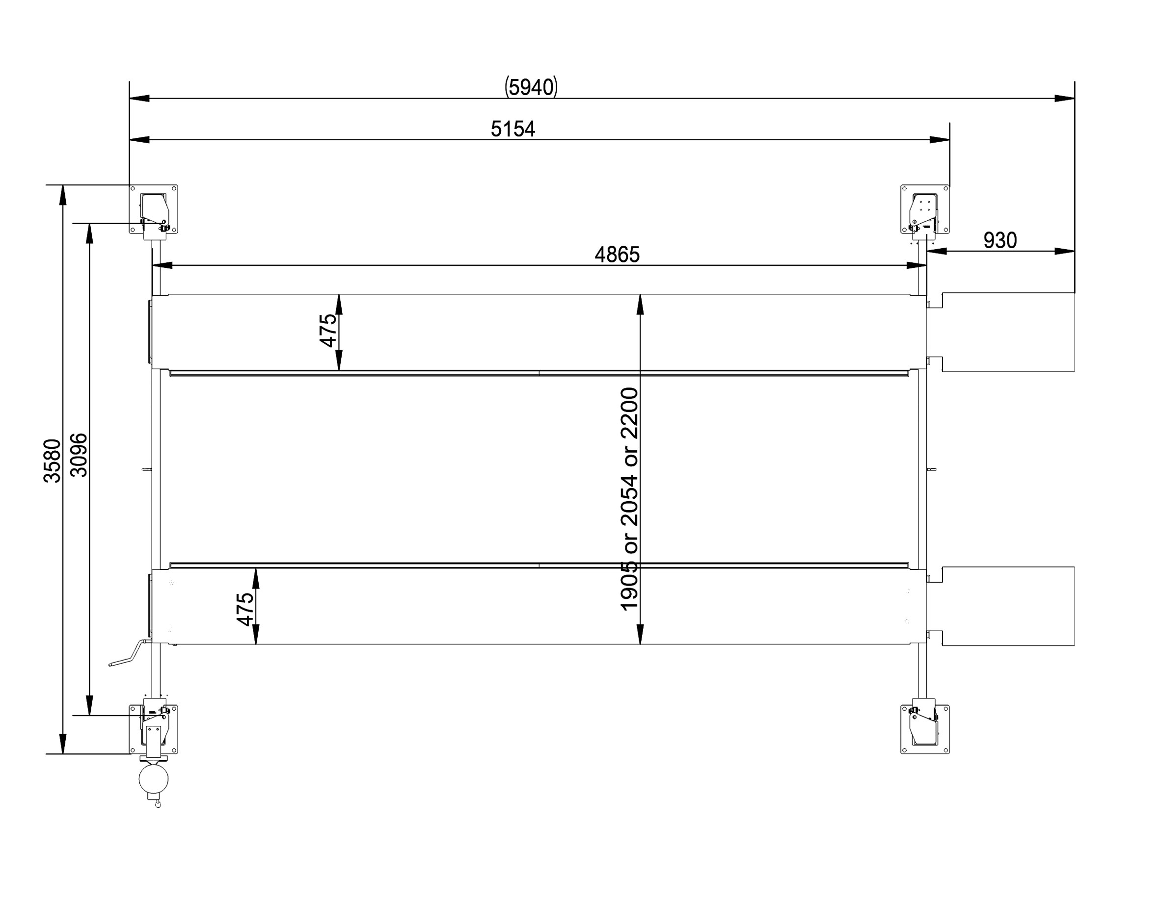
● 4865mm long non-skid surface;
● Over-sized self-lubricating cable rollers
● Professional power powder coat finish;
● Heavy duty, stainless lifting cables;
● Single point manual lock release, quite convenient to operate;
● Cable anti-break device to double ensure the safety;
● Single hydraulic cylinder hidden away under the runway
for Min exposure and Max reliable performance;
● ETL & CE Certified Power unit.


Tags:
Technical parameter
Model:SS9000XLW
Lifting Capacity: 4000KGS
Lifting Height: 2082mm
Power of Motor:2.2KW
Oil Pressure:18Mpa
Power Supply:10-240V/380-415V 1/3PH, 50Hz/60Hz
Rise Time:50s
Lowering Time:40s
